Ridgewood Public Library

125 N Maple Ave, Ridgewood, NJ 07450

SPOTLIGHT

Designer: Whalen Berez Group
FF&E Cost: $830,000.00
Project Size: 7,300 sq. ft.
Timeline: Phased over 15 months

Key Points

  • The WBG produced 3D renderings, budget proposals, and FF&E presentations for town fundraising purposes. Ridgewood Public Library funded the full amount needed to begin phase one of the building.

 

  • All interior programming and space planning, interior design services, custom architectural millwork, project management, procurement, and installation was provided by the WBG.
Ridgewood Public Library Case Study-img-2

PROJECT NEEDS

  1. Create a full service interior design and FF&E package for Ridgewood Public Library’s phase one spaces: main lobby, main circulation level, teen room, flex art room/meeting room, and mezzanine.

Client Requests:

  • Create an inviting and contemporary design with better way finding in overall library and especially to the main stairwell that users hav a hard time finding.

WBG SOLUTION:

Over a 15 month period, the WBG executed the design and installation in four spaces at the library, leaving the main lobby untouched until the next phase is ready in estimated 2026. The first four months were dedicated to interior design, FF&E specifications, and programming meetings to develop a final package for pricing. This time was invaluable to meet the library board’s budget expectations and receive approvals on all furniture and finish choices.

The Teen Room was the first project to be fundraised and installed by the WBG and really kickstarted the town of Ridgewood to participate in fundraising for the other spaces we designed.

  • Features include: Brand new solid-wood shelving, new *wipeable and easily cleanable* upholstered lounge piece, mobile nesting tables for flexibility, new lighting, new paint and flooring, and an overall invigorating teen space.
David-Koch-H.-Theater-at-LinDavid-Koch-H.-Theater-at-Lincoln-Centercoln-Center
David-Koch-H.-Theater-at-LinDavid-Koch-H.-Theater-at-Lincoln-Centercoln-Center
RENDERING V. REALITY
David-Koch-H.-Theater-at-LinDavid-Koch-H.-Theater-at-Lincoln-Centercoln-Center
David-Koch-H.-Theater-at-LinDavid-Koch-H.-Theater-at-Lincoln-Centercoln-Center

The WBG carried the design concepts from library’s teen zone and brought it into the new circulation level for a cohesive design. The renovation included new carpet tiles and LVT flooring, paint, lighting, furniture, charging stations, custom shelving, and new branding and signage. Combined with a neutral subtle wood tone, modern LED lighting, and a geometric carpet tile, the space feels contemporary and bright.

The library’s new main level includes lots of lounge space, ceiling-height shelving, and ample work space for both patrons and library staff. The new custom millwork circulation desk has a beautiful (and durable) man-made stone countertop and a wood tambour face.

The library’s existing design had many flaws that needed to be solved for. The main issue being the “hard to find” main stairwell. We solved this issue by creating and installing an LVT pathway as a form of visual way finding for library patrons.

The second issue was inadequate lighting and seating. We specified new LED lights and focal lighting fixtures over lounge areas. All finishes and fabrics that we specified are wipeable, bleach cleanable, and high performance to withstand the heavy traffic environment.

David-Koch-H.-Theater-at-LinDavid-Koch-H.-Theater-at-Lincoln-Centercoln-Center
David-Koch-H.-Theater-at-LinDavid-Koch-H.-Theater-at-Lincoln-Centercoln-Center
David-Koch-H.-Theater-at-LinDavid-Koch-H.-Theater-at-Lincoln-Centercoln-Center
David-Koch-H.-Theater-at-LinDavid-Koch-H.-Theater-at-Lincoln-Centercoln-Center
David-Koch-H.-Theater-at-LinDavid-Koch-H.-Theater-at-Lincoln-Centercoln-Center
David-Koch-H.-Theater-at-LinDavid-Koch-H.-Theater-at-Lincoln-Centercoln-Center
David-Koch-H.-Theater-at-LinDavid-Koch-H.-Theater-at-Lincoln-Centercoln-Center

“The room looks great. Your team did a fantastic job. They were efficient, kept disruption to a minimum, and kept us informed on progress.”

– Lorri Steinbacher, Library Director

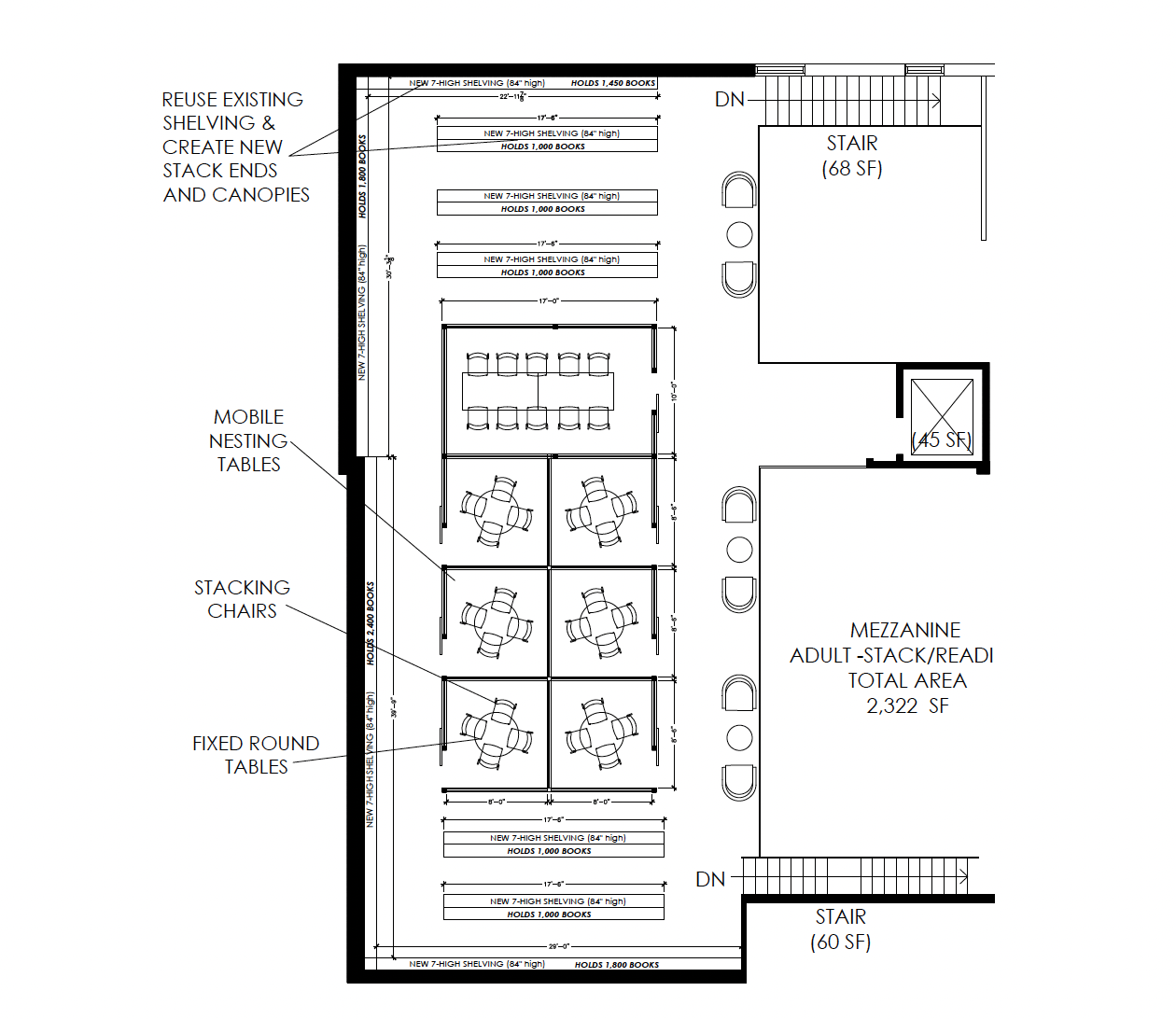
The Mezzanine was the final project in Ridgewood Public Library’s Phase One to be installed by the WBG in September 2024.

Features include: New custom glass study rooms fitting up to four users each, new lighting, carpeting, paint, solid-wood shelving, and furniture.

This space was specifically requested because the library had no private study space for its users or one-on-one ELS courses. The study rooms are now used daily and loved by library patrons!

David-Koch-H.-Theater-at-LinDavid-Koch-H.-Theater-at-Lincoln-Centercoln-Center
David-Koch-H.-Theater-at-LinDavid-Koch-H.-Theater-at-Lincoln-Centercoln-Center
David-Koch-H.-Theater-at-LinDavid-Koch-H.-Theater-at-Lincoln-Centercoln-Center
David-Koch-H.-Theater-at-LinDavid-Koch-H.-Theater-at-Lincoln-Centercoln-Center

Proposed Lobby

David-Koch-H.-Theater-at-LinDavid-Koch-H.-Theater-at-Lincoln-Centercoln-Center
David-Koch-H.-Theater-at-LinDavid-Koch-H.-Theater-at-Lincoln-Centercoln-Center
David-Koch-H.-Theater-at-LinDavid-Koch-H.-Theater-at-Lincoln-Centercoln-Center